Oak Hill Marine Design
Naval Architecture ~ Marine Design ~ Manual and Computer Drafting Services
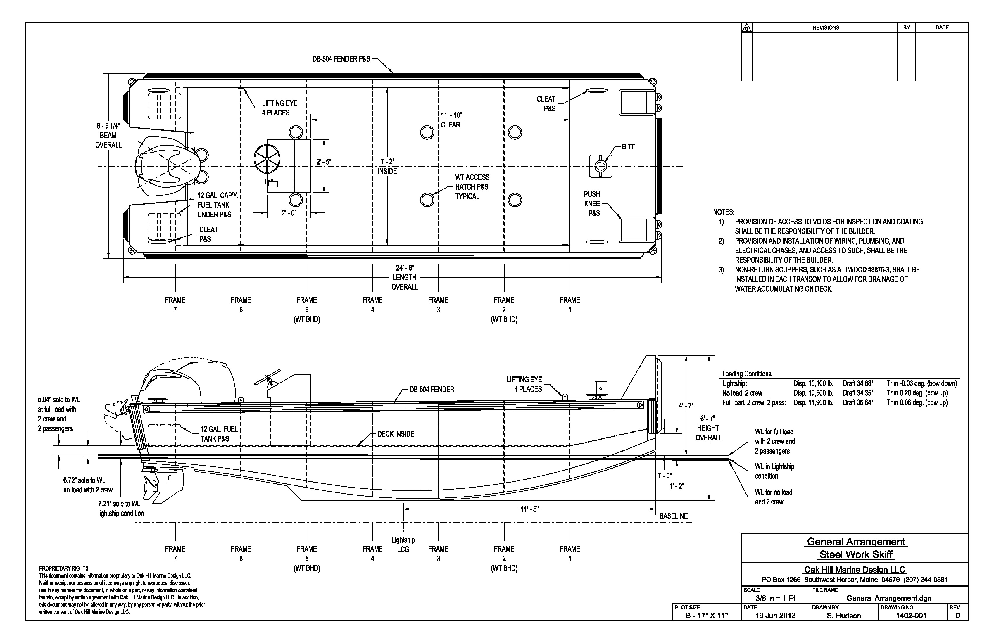
24' Work Skiff Redesigned for Steel Construction
A naval architecture firm we've worked with designed an aluminum work skiff for a marine construction company. However, when the drawings were delivered the client decided that it would be easier for his employees to build the skiff out of steel, as they were more familiar working with that material. The other company was busy with other projects so Oak Hill Marine Design was hired to redesign the vessel in steel.
We converted the weight of aluminum in the original vessel to that for steel, then began adjusting the new vessel's displacement to suit. As the lofted model's shape changed we continually revised the estimated displacement to suit the changing weight of material. The final result was a much deeper vessel, but one which still retained the original deck layout.
From the 3D lofted model we created expanded plate shapes and structural sections to be CNC cut. Following that we created a set of construction drawings for the client.
Unfortunately, after delivery of the final drawings we learned that the client had decided to build the work boat out of aluminum. Apparently, the lighter weight of that material, coupled with the lower draft, were significant factors in the decision.
